aboutbanner

88 Providence Drive, Bowhill SA

Bowhill
$642,000.00


Sold

Offer Type

House

Property Type

4

Bedrooms

1

Bathrooms

Description

Vendors are moving just down the road, this sale is priced to sell in November and settle for holidays, Including use of the jetty as shown in Video, please take time to watch it and come to our open Sunday 16th at 11:30 am till 12:15.

Bowhill is fast becoming one of the Murray's most sought-after destinations. And opportunities like this - offering such an incredible lifestyle at an affordable level - are increasingly rare.
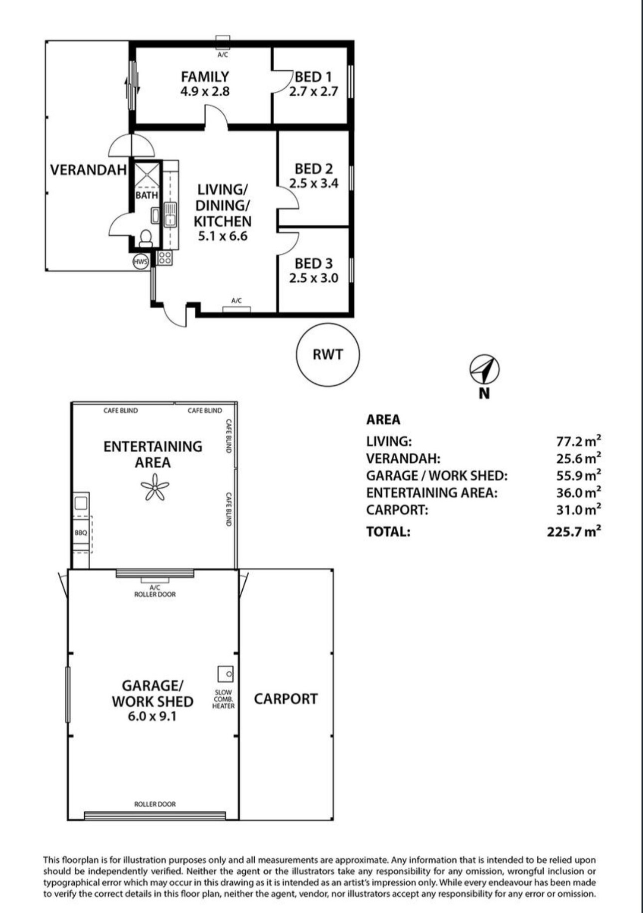
Behind its humble exterior lies a modern, well-appointed interior, designed for easy weekends away with family and friends that can comfortably sleep 10 inside and many in the shed sleep outside rather than anyone driving home.

Offering plenty of room for everyone to relax after a day out on the water. The updated bathroom, complete with shower, toilet and vanity, is both stylish and convenient, with easy access from both the shack and outdoor areas.

Plenty of under cover parking, paving and concrete, A fully enclosed 6x6m entertaining shelter will truly impress - complete with kitchen facilities, café blinds, ceiling fan and infrared heater. Whether you're watching the footy with mates or enjoying long summer nights with family, this space is built for making memories.

The adjoining 6x9m Colorbond shed offers secure storage for your boat and cars, with front and rear roller doors, side access, laundry facilities, air conditioning, and even a wood heater - making it as comfortable as it is functional. There's also plumbing in place if you wish to add another bathroom down the track (STPC) if you wish.

Just a short stroll to the public reserve, Bowhill Store & Café, playground, BBQ area and boat ramp, you'll have everything you need to dive straight into river life.

Set on a freehold Torrens Title with both rainwater and mains water, Includes use of Jetty as pictured in video and with furniture negotiable, this property is ready for you to enjoy this summer. Only 20 minutes from Mannum and just over an hour from Adelaide, it's the ideal weekend escape or laid-back holiday base.

Don't miss your chance to secure your slice of the Murray - bring your boat, your jet ski, and your family, and start living the river dream.

DISCLAIMER: We have in preparing this document using our best endeavours to ensure the information contained is true and accurate but accept no responsibility and disclaim all liability in respect to any errors, omissions, inaccuracies, or misstatements contained. Prospective purchasers should make their own enquiries to verify the information contained in this document.

RLA 292129

Details

  • Offer Type: Sold
  • Price: $642,000.00
  • Location:Bowhill
  • Bedrooms: 4
  • Property Size: 225 m²
  • No Of Car Parking: 2
  • Update Date: Jan 28, 2026
  • Property Type: House
  • Map: Bowhill, Australia
  • Bathrooms: 1
  • Listing ID: 32726606

Location